MAISON MAURICE

Programme : Rénovation d’une maison des années 60

Mission : Mission complète (études et travaux)

Maîtrise d’ouvrage : Privée

Maîtrise d’œuvre : QUEL

Localisation : Crozon (29)

Surface : 116 m²

Avancement : Travaux en cours

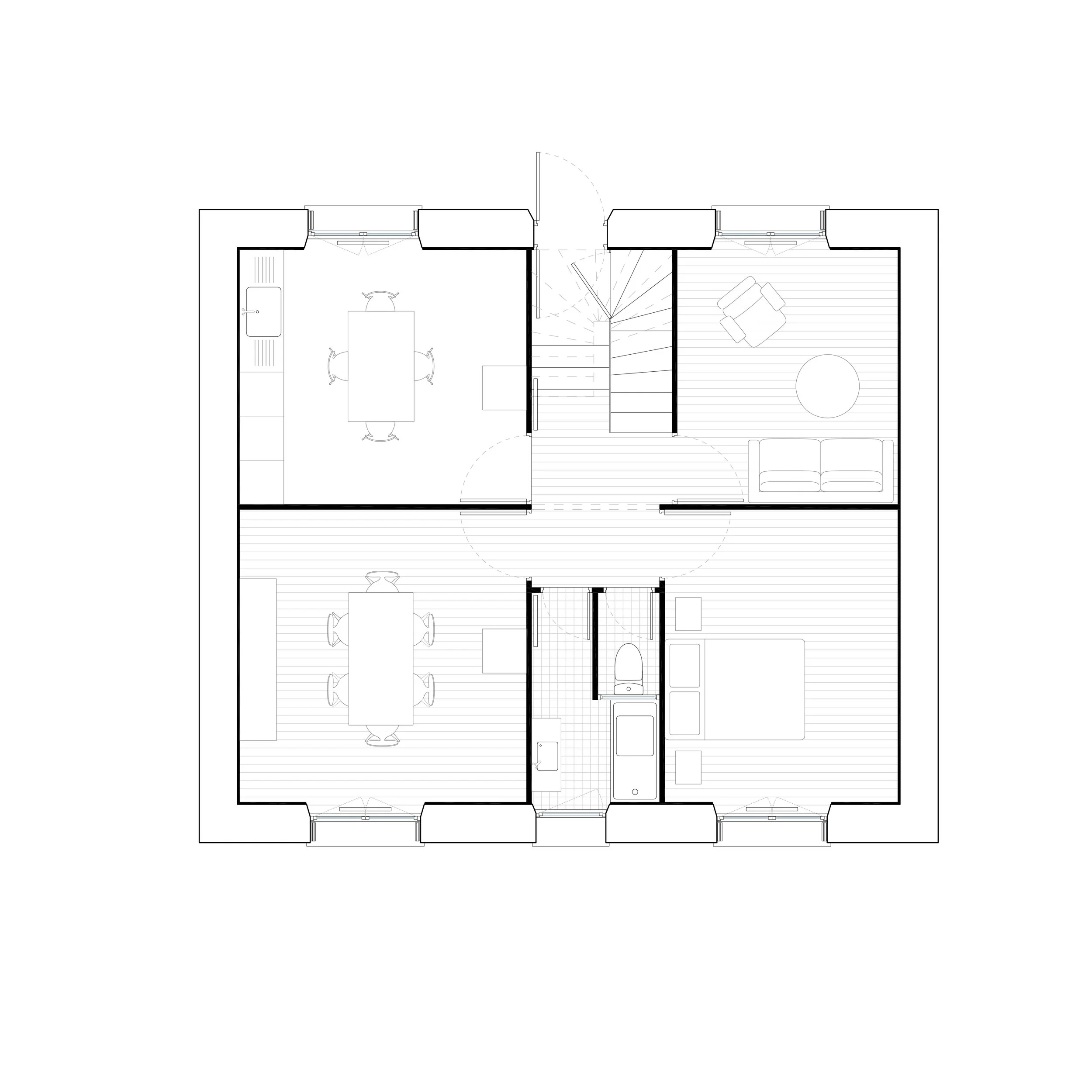
Lorsque l’on entre pour la première fois dans la maison Maurice, le temps est arrêté : la maison est restée intacte depuis sa construction en 1962, des salles de bains aux papiers peints, des peintures à la cuisine…

Les nouveaux propriétaires souhaitent réaliser une rénovation complète de la maison, à la fois pour en améliorer les performances thermiques et pour qu’elle devienne plus compatible avec leurs goûts et leur mode de vie tout en prenant en compte un budget limité.

Les choix se sont donc portés sur une isolation de la toiture et du plancher bas, la création d’une pièce de vie avec cuisine ouverte, la réfection totale des deux salles de bains et un rafraîchissement d’ensemble.

Le projet prévoit également la mise en œuvre d’une porte-fenêtre et d’un escalier extérieur permettant de descendre directement à la terrasse sans passer par la cave.